Город-спутник за 104 миллиарда возведут под Воронежем
В Рамонском районе планируют построить школы и детские сады
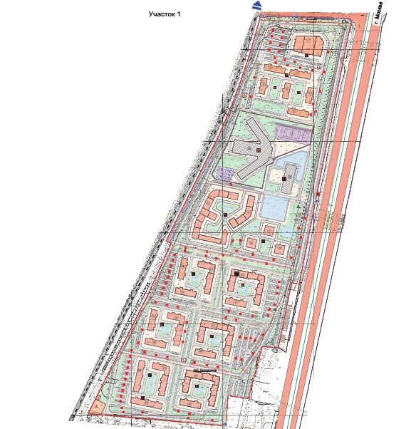
Город-спутник «Солнечный» планируют построить в Рамонском районе. Он раскинется по обе стороны федеральной трассы М-4 «Дон» на выезде из Воронежа. Документы проекта опубликовали на сайте Яменского сельского поселения.

Город-спутник будет состоять из двух участков: один будет ближе к селу Ямное, а второй — к ТРЦ «Град». Возведут более 70 многоэтажных домов. Самые высокие МКД будут иметь 19 этажей. Прилегающую к домам территорию планируют благоустроить — снабдить тротуарами, пешеходными дорожками и инфраструктурой для маломобильных граждан. Также возведут детские и спортивные площадки и автостоянки. Обещают не забыть и про зелёные насаждения, чтобы защитить новый город-спутник от загазованности трассы.
Сейчас территория, на которой планируют возвести город-спутник, не оснащена необходимой социальной инфраструктурой, а ближайшие школы и детсады в Ямном переполнены. В связи с этим в «Солнечном» обещают построить две школы (на 1 500 человек каждая), два муниципальных детсада (на 500 мест каждый) и шесть частных (на 260 мест). Сроки реализации — 2027 — 2034 годы. В 2030 году начнут строить инновационный образовательный центр для детей, который смогут посещать 1 200 человек в сутки. Его планируют возвести к 2032 году.

Перемещаться по территории города-спутника можно будет пешком или на легковых автомобилях. Максимально допустимая скорость по межквартальному проезду составит 40 км/ч, а по основным улицам — 60 км/ч. Добраться до «Солнечного» можно будет на автобусе. Также может появиться новая остановка между остановками «Хутор Ветряк» и «Поворот на Ямное». Не забыли и о возможном появлении метробуса — дорожную полосу для него учли при проекте города-спутника.
Начать возведение «Солнечного» могут уже в этом году. Построить город-спутник планируют до 2035 года.

Напомним, о создании города-спутника начали говорить ещё в 2019 году. В ноябре 2022 года губернатор Воронежской области Александр Гусев заявил, что в «Солнечном» смогут поселиться около 40 000 человек, а на территории города-спутника появится почти 8 000 рабочих мест.
В 2023 году выяснилось, что на возведение «Солнечного» могут потратить более 104 миллиардов рублей. Однако проект ещё находится на экспертизе, сообщили «МОЁ!» источники в компании. Оценку стоимости проведут до конца февраля.